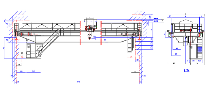
QD型通用桥式起重机

- 电动钢丝绳葫芦
 - 标准配备变频器(起升、运行)通过缓慢启动、缓慢停止,减少冲击,动作平稳 采用拉力转子式(Pull-Rotot)制动器、电子热继电器,提高安全性能 采用轻载高速功能,提高作业效率:同时具有运行监视功能 节能环保-符合国家节能环保要求,整机能效等级高,属于节能产品。
 

- LX型电动单梁悬挂起重机
 - LX型电动单梁悬挂起重机是一种悬挂在厂房梁下工字钢下翼缘运行的轻小型起重机,无须立柱支撑,节约了地面空间,使用方便灵活。适用于机械制造、注塑、模具加工等场所。
 
- 轮胎门式起重机
 - 轮胎门式起重机,结构简单,维护方便,广泛适用于中、小型多用途堆场,有效提高起吊高度。适用于机械制造、注塑、模具加工、钢材、石材等场所。
 
 
QD型通用桥式起重机采用卷扬机作为起升机构,载重量较大,使用频率高,经久耐用。适用于机械制造、工厂生产线、钢厂、变电站、水厂等场所。
QD型电动双梁桥式起重机配置吊钩适用于机械加工、装配车间、金属结构车间、冶金与铸造车间以及各类仓库的吊运工作;配置抓斗适用于冶金、水泥、化工等工业部门室内或露天的固定跨度从事散粒物料的搬运工作。
配置吊钩适用于机械加工、装配车间、金属结构车间、冶金与铸造 车间以及各类仓库的吊运工作;配置抓斗适用于冶金、水泥、化工等工业 部门或露天的固定跨度从事散粒物料的搬运工作。
工作级别:A5(用于工作不太频繁,如一般机械加工和装配车间)。A6( 用于工作较为频繁,如冶金和铸造车间的辅助吊运)
额定起重量:5t、10t、16/3.2t、20/5t、32/5t、50/10t6种规格,(起重量用分数形式表示,分子为主钩起重量,分母为副钩起重量)
跨度:10.5m、13.5m、16.5m、19.5m、22.5m、25.5m、28.5m、31.5m8种规格。
 
  
 

 



广东昱嘉起重机械制造工业有限公司
400电话:400-1133-186
座机:0752-2260708
手机:13802872058(联系人:薛来华)
客服QQ1:2819465605
客服QQ2:2032136211
客服QQ3:2982535782
传真:0752-3199309
邮箱:dsb@yjqzj.com.cn
公司地址:广东省惠州市博罗县泰美镇板桥工业区良田村金龙路东边 
| * 联系人: | 请填写您的真实姓名 | 
| * 手机号码: | 请填写您的联系电话 | 
| 电子邮件: | |
| * 采购意向描述: | |
| 请填写采购的产品数量和产品描述,方便我们进行统一备货。 | |
| 验证码: | 
                            
                             | 
                    

- 电动钢丝绳葫芦
 - 标准配备变频器(起升、运行)通过缓慢启动、缓慢停止,减少冲击,动作平稳 采用拉力转子式(Pull-Rotot)制动器、电子热继电器,提高安全性能 采用轻载高速功能,提高作业效率:同时具有运行监视功能 节能环保-符合国家节能环保要求,整机能效等级高,属于节能产品。
 

- LX型电动单梁悬挂起重机
 - LX型电动单梁悬挂起重机是一种悬挂在厂房梁下工字钢下翼缘运行的轻小型起重机,无须立柱支撑,节约了地面空间,使用方便灵活。适用于机械制造、注塑、模具加工等场所。
 
- 轮胎门式起重机
 - 轮胎门式起重机,结构简单,维护方便,广泛适用于中、小型多用途堆场,有效提高起吊高度。适用于机械制造、注塑、模具加工、钢材、石材等场所。
 
相关资讯
| 我要评论: | |
| 内 容: | 
                             (内容最多500个汉字,1000个字符)  | 
                    
| 验证码: | 看不清?! | 
昱嘉起重机产品分类
                桥门式起重机
座机:0752-2260708
传真:0752-3199309
地址:广东省惠州市博罗县泰美镇板桥工业区良田村金龙路东边







共有-条评论【我要评论】